On Fig.3 is shown a geometrical modeling of part “Body” from assembly unit “Step by Step” with graphical system SolidWorks using following commands:
 
Fig.1 Section view of Rotary pump with safety overflow valve
 
Fig.2 Nature safety overflow valve
New > Part > OK;
Sketch > Sketch  > Front Plane > Sketch1;
Centerline  > Base point >;
Smart Dimension > Parameters > Esc;
Exit Sketch > Features > Revolve Boss/Base;
Revolve > √.
 
 
 
 
 
 
 
 
 
Fig.3 Geometrical modeling of part “Body”
For the generation of three-dimensional geometric model of the designed assembled unit is used developed a database of component parts of the valve.
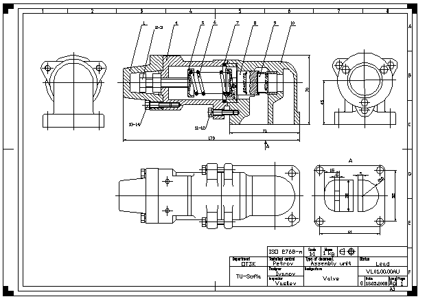
On Fig.4 is shown a 3D geometrical model of safety overflow valve and on Fig.5 - a cross section of assembly unit with graphical system SolidWorks. On Fig.6 is shown a exploded drawing of assembly unit of safety overflow valve, and on Fig.7- 2D assembly drawing of design valve on the base of 3D geometrical model made with graphical system SolidWorks.
Modeling of geometrical model of assembly unit in following steps:
New > Assembly > OK;
Browse > My Documents > Parts;
Corpus > Open;
Insert Component;
Browse > Bush > Open;
Rotate Components;
Mate > Standard Mate > Concentric;
√   > Close;
Insert Component;
Browse > Name the next part of assembly unit > Open;
√   > Close.
 
Fig.4 3D model of assembly unit
 
Fig.5 Cross section of valve
 
Fig.6 Еxploded drawing of assembly unit
 
Fig.7 2D Assembly drawing of safety overflow valve